PG电子游戏(中国)平台官方网站

大苑海淀府售楼处(北京大苑海淀府)网站-2024房价-楼盘百科—PG电子游戏官网官方网站

NEWS CENTER

PG新闻
展开分类
收起分类

大苑海淀府售楼处(北京大苑海淀府)网站-2024房价-楼盘百科

2024-09-04 11:41:39

  大苑海淀府房价特价信息丨详细解答丨优惠政策丨在售户型图丨项目介绍丨在售房源丨周边配套丨VR看房丨楼盘图丨沙盘图丨位置图丨配套图丨售楼处地址丨足不出户丨销售1V1讲解

大苑海淀府售楼处(北京大苑海淀府)网站-2024房价-楼盘百科(图1)

  在北京的豪宅圈内,一直都有一个强烈的共识:北京看高端,高端看海淀。究其根源,海淀这块备受青睐的土地,上承三山五园,占据着全城梦寐以求的优质教育资源。加之近年以来,区域内土地出让一度紧缺,自万柳书院之后,海淀豪宅在万众景仰中,一度销声匿迹。

  大苑·海淀府,位于海淀西四环田村板块,⻄四环6号线米,北京四环沿线寸土寸金的珍稀地段。是北京市大苑天地房地产开发有限公司深耕海淀十六年的潜心之作。首期开盘时间:2019年12月31日;二期开盘时间:2020年8月8日。

  建筑规模约163000㎡,总户数348户,楼座错落分布12-14层,社区纯粹,地块内所有住宅都不会受到前楼栋的遮挡,总价2000万起。

  大苑海淀府,以中式府院文化为骨架,采用当代园林布景技法,创造中轴对称、大湖藏风、曲径通幽、深宅阔景的园林规制。项目一脉香山别墅区,气承颐和园、圆明园皇家园林,近揽三千亩城市绿地休闲公园,集海淀历史文化传承与生态环境的城市宜居之地。

大苑海淀府售楼处(北京大苑海淀府)网站-2024房价-楼盘百科(图2)

  出户入门,多层礼制,几层空间。一重府邸、二重明台、三重御林、四重堂院、五重户门,层层递进即传统园林之章法制式,彰显高峻威严,气象森然。

大苑海淀府售楼处(北京大苑海淀府)网站-2024房价-楼盘百科(图3)

  采用三层双中空外镀膜Low-E玻璃,99%隔离阳光直射危害,德国高性能外窗及降噪排水系统,24小时护卫室内静谧空间,全心营造静心哲居生命体验。

  配套方面,大苑海淀府规划有全业态步行商业街,社区高端会所,社区幼儿园等配套。项目紧邻20万平米田村京粮广场,举步可达首师大附中西校区,周边众多医疗机构聚集及各大银行。

  2020年6月,海淀府顺利完成WELL健康住宅认证的注册,正式开启WELL健康住宅认证之旅。

  未来海淀府将接受来自IWBI(国际WELL建筑研究院)的认证审核,并与之紧密合作,完成海淀府WELL认证的所有工作。

  WELL健康住宅认证体系源于美国,是全球范围内公认的专注于人类健康和福祉领域的领先评级系统,拥有全球范围内广泛影响力。相比于国内其它健康类住宅在专注建筑性能本身的绿建认证体系、专注能源与环境设计因素的LEED认证体系,WELL健康住宅认证更加注重建筑环境中人的健康和福祉,WELL健康建筑认证从来不是一次评奖、颁奖的结果,而是一个需要长达数年,涵盖从建筑设计、建造到运营总共120项健康标准的全系统检测达标认证,最终实现健康建筑让人们更健康,更幸福的目的。

大苑海淀府售楼处(北京大苑海淀府)网站-2024房价-楼盘百科(图4)

  大苑海淀府位于田村版块,距西四环仅2公里,交通优势明显,与阜石路形成纵横交错的十字路网。

  PG平台 PG电子游戏官方

  已经通车的轨道M6号线号线将在田村站形成交通枢纽站,紧邻20万平米田村京粮广场。

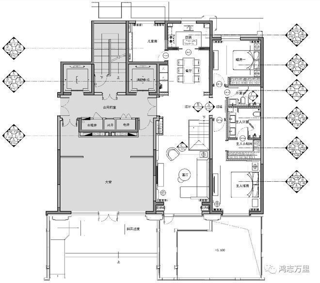
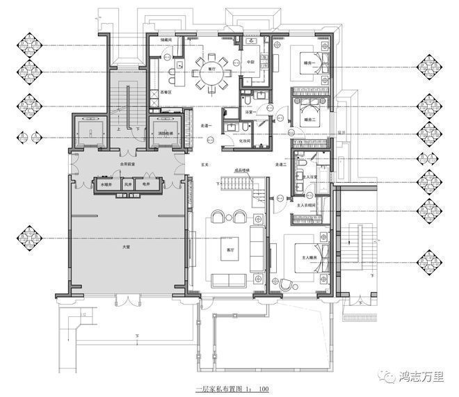
  户型:E户型170㎡三室三卫,C户型225㎡ 四室三卫,B户型263㎡ 四室四卫

  其中,会所成人泳池、儿童教学池,按摩池等均采用德国全进口不锈钢泳池体,是国内唯一使用该泳池设备的住宅项目,能有效减除菌类的附着生长,水质更加清洁,泳池用水全部采用无氯消毒。

  C户型南北向四居225㎡:2500-2800万(分布11和7号楼1-14层)

  E户型下跃南北向四居270㎡(赠送下沉式庭院和多功能房≥70㎡):约2500万

  PG平台 PG电子游戏官方

大苑海淀府售楼处(北京大苑海淀府)网站-2024房价-楼盘百科(图5)

大苑海淀府售楼处(北京大苑海淀府)网站-2024房价-楼盘百科(图6)

  PG电子平台 PG网站

  D户型下跃南北向四居304㎡(额外赠送下沉式庭院和多功能房≥70㎡):约2900万

大苑海淀府售楼处(北京大苑海淀府)网站-2024房价-楼盘百科(图7)

大苑海淀府售楼处(北京大苑海淀府)网站-2024房价-楼盘百科(图8)

  C户型下跃南北向四居332㎡(赠送下沉式庭院和多功能房≥70㎡):约3100万

大苑海淀府售楼处(北京大苑海淀府)网站-2024房价-楼盘百科(图9)

大苑海淀府售楼处(北京大苑海淀府)网站-2024房价-楼盘百科(图10)

  B户型下跃南北向五居410㎡(赠送下沉式庭院和多功能房≥70㎡):约3600万

大苑海淀府售楼处(北京大苑海淀府)网站-2024房价-楼盘百科(图11)

大苑海淀府售楼处(北京大苑海淀府)网站-2024房价-楼盘百科(图12)

  A户型下跃南北向六居510㎡(赠送下沉式庭院和多功能房≥70㎡):约4500万

  大苑海淀府园林以中式府院文化为骨架,采用当代园林布景技法,创造中轴对称、大湖藏风、曲径通幽、深宅阔景的园林规制,兼顾实用主义,复刻 “三开两进”的仪式感,演绎“一轴五亭八景”的“大隐于市”情怀。大面积四季不冻湖,采用四季不结冰的科技技术,为居者留住365天的湖光山色。

  以当代科技构建世界城市大宅,在园林打造、室内空间设计、科技应用等维度为北京楼市打造升级版的健康住宅.精心打造的生态园林,包括160多种树种、千余株植被,让社区宛如森林氧吧。园林中心约3000平米的四季不冻湖,也蕴含了高端科技,使湖水在冬天寒冷的气候下,也能潺潺流淌,湖水终年碧波潋滟,四季可赏。

  大苑海淀府房价特价信息丨详细解答丨优惠政策丨在售户型图丨项目介绍丨在售房源丨周边配套丨VR看房丨楼盘图丨沙盘图丨位置图丨配套图丨售楼处地址丨足不出户丨销售1V1讲解